Projet terminé!
Blanc et Noir est fier d'avoir contribué au succès de ce projet!
Pour tout information relatif à celui-ci, veuillez vous référer au promoteur.
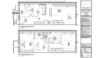
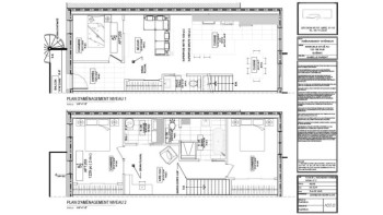
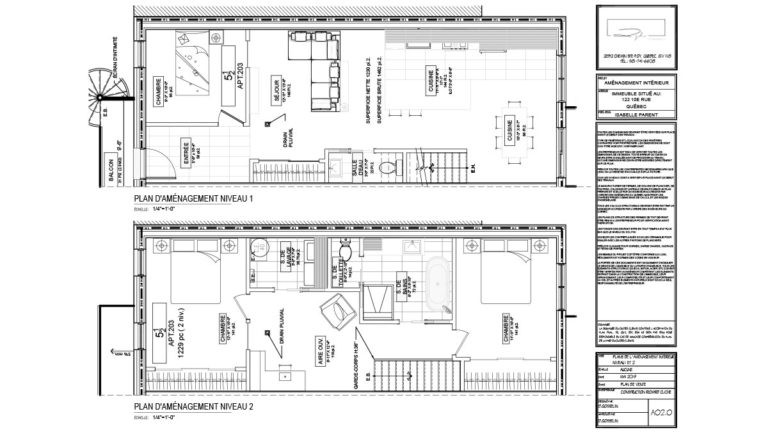
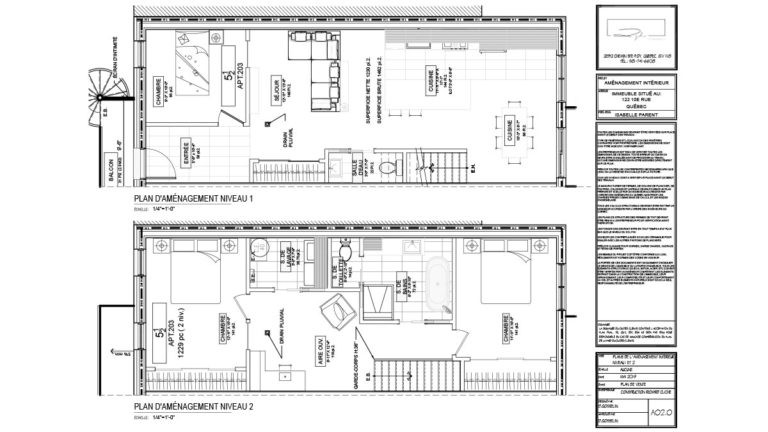
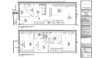
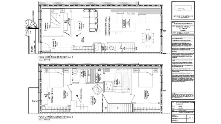
6 maisons de ville sur deux étages de type condos à vendre dans Limoilou. Situé dans un secteur recherché, ces unités de 3 chambres ont été pensées pour un style de vie actif!
Caractéristiques des unités
- 1 espace de stationnement extérieur inclus
- Grande douche en aluminium: une nouvelle tendance à découvrir
- Bain autoportant
- Insonorisation supérieure
- Terrasse à l’ouest
- Plancher de bois laminé
- Escaliers en bois franc
À PARTIR DE 249 000$ +tx
Autres projets disponibles
- Le Hector |
- Le Maxim Phase 2 |
- Esplanade Cartier Phase 3 |
- Esplanade Cartier Phase 2 |
- Kwayaweh |
- Le Philippe phase 2 |
- Anticosti |
- La Klé phase 4 |
- Le KELO |
- Ilot Victoria |
- La Klé |
- Le Florent |
- Le Philippe |
- Le 1070 Cap-Rouge |
- Le Mu |
- Le Proxi 3 |
- Loges St-Nicolas |
- Le Huppé |
- Le Maguire sur l'Avenue |
- Place Mozart Lévis - Phase 2 |
- Place Mozart Lévis |
- River Island phase 2 |
- Riviera Bay |
- Marina Garden 2 |
- Silver Beach |
- Wave Garden |
- Secret Garden |
- Poseidonia |
- Moon Garden Golf Resort |
- Moon Garden Phase 2 |
- Crystal Garden |
- Le Chequers Place |
- Le Chequers Court |
- The Mooncrest |
- Saumeria Tulum |
- Aldea Savia Tulum |
- Oasis Bay |
- Oasis Lake |
- Aldea Park |
- Ansaya |
- Tropicale |
- Azzure |
- Sun Garden (Moon Garden Phase 3)
© Blanc & Noir Condos Neufs